HG96 Sauna Sövall
Grebbestad, Sweden 2025.





The project entails the design of a freestanding sauna situated on the rocky shoreline just north of
Grebbestad, conceived as a complementary structure to an existing holiday property. The sauna takes
inspiration from the vernacular boathouses of the Swedish west coast, reinterpreted through a
contemporary and sustainable architectural expression. The architectural concept draws on the character of
the traditional, weather-worn architecture that define the local context, while simultaneously establishing a
distinct, modern identity. This dialogue between tradition and reinterpretation anchors the project in its
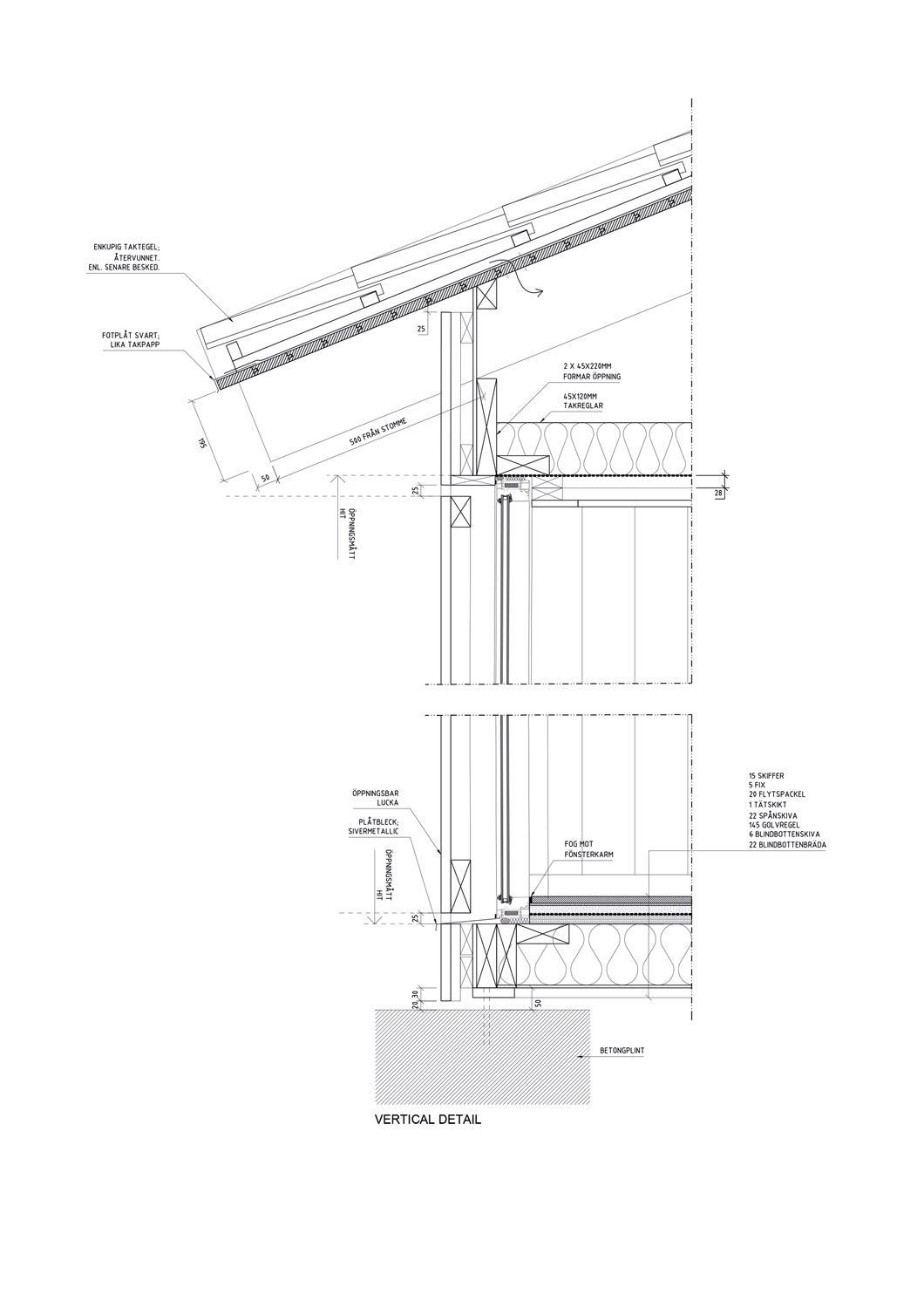
cultural setting. The structure rests on concrete piers cast directly into the bedrock, incorporating a series of
integrated functional elements. Above, a timber frame with untreated wooden cladding is designed to
weather naturally over time, gradually harmonizing with the rugged coastal environment. The roof is clad
with reclaimed tiles sourced from a nearby demolition site, reinforcing the connection to local building
traditions while introducing a sustainable dimension through material reuse.





