︎
HelgessonGonzaga
Architecture & Spatial Design
work
info
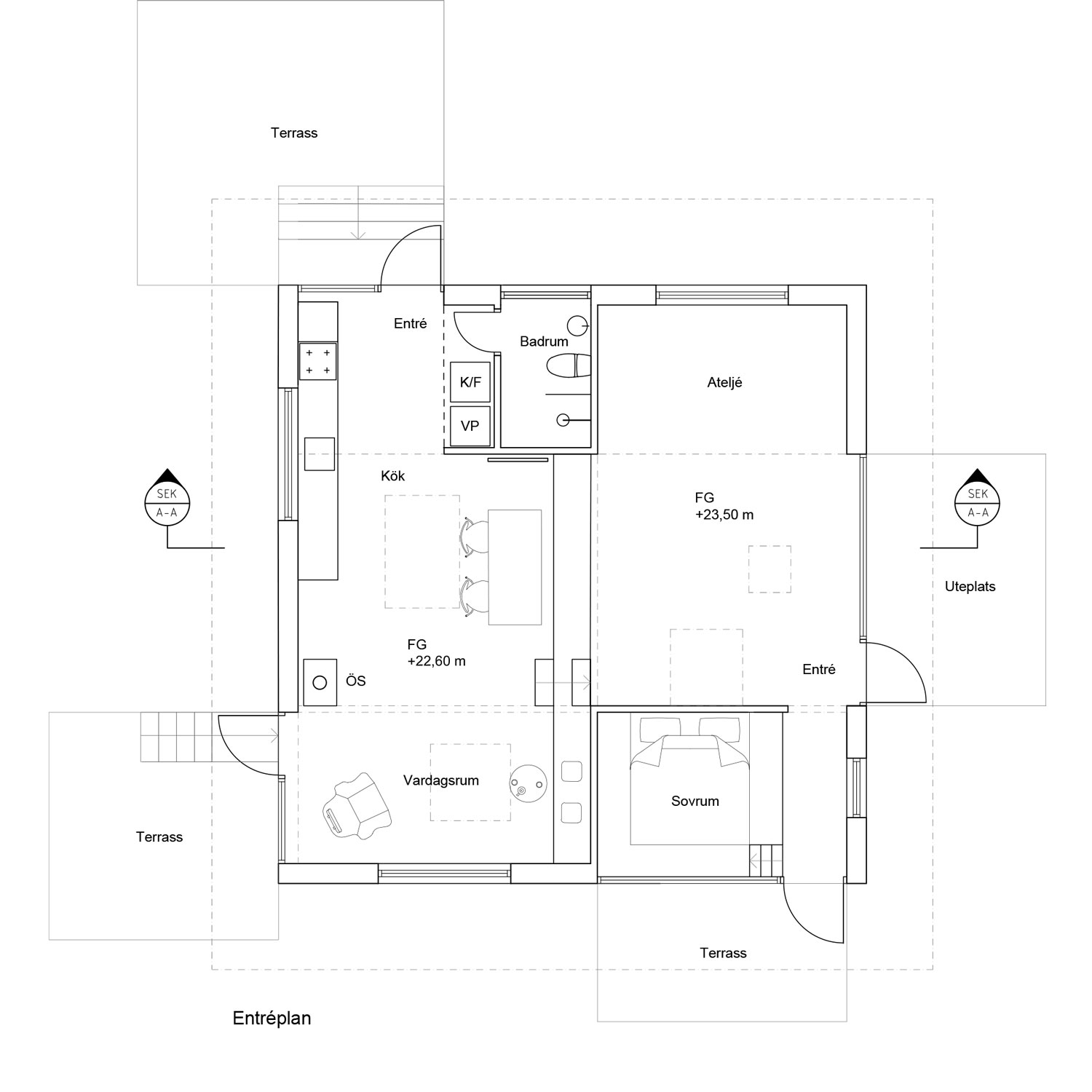
HG94 House Färlevfjorden
Lysekil, Sweden - Sketch 2024.
The project entails the design of a weekend house.
andreas@helgessongonzaga.se
+46 708-881801
isabell@helgessongonzaga.se
+46 706-509556