︎
HelgessonGonzaga
Architecture & Spatial Design
work
info
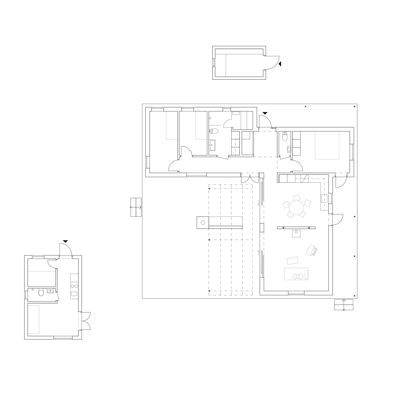
HG56 House L
Lysekil, Sweden 2022 - ongoing
House L is a summerhouse located near Lysekil on the Swedish west coast. Completion is planned for 2025.
andreas@helgessongonzaga.se
+46 708-881801
isabell@helgessongonzaga.se
+46 706-509556