HG48 House Tjurpannan
Grebbestad, Sweden 2022
![]()
![]()
![]()
![]()
![]()
![]()
![]()
![]()
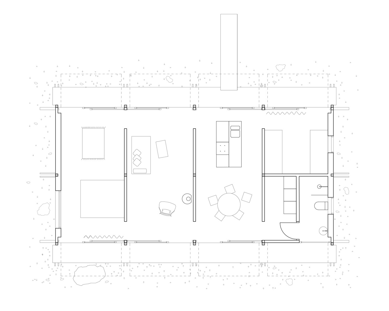
House Tjurpannan is a weekend house bordering a magnificent nature reserve, on the west coast of
Sweden. The topography is dramatic and the area is wild and weathered.
The house keeps a low silhouette and inserts lightly in the landscape, with minimal exploration of the existing
terrain. A wooden structure is raised on plinths, directly anchored in the rock. Glulam posts placed on a regular distance, form room division and module dimensions of the house. The generic plan enhances focus on basic spatial qualities and the uniqueness of the
surrounding site.
Photo Mikael Olsson.














