Architecture & Spatial Design

work     info

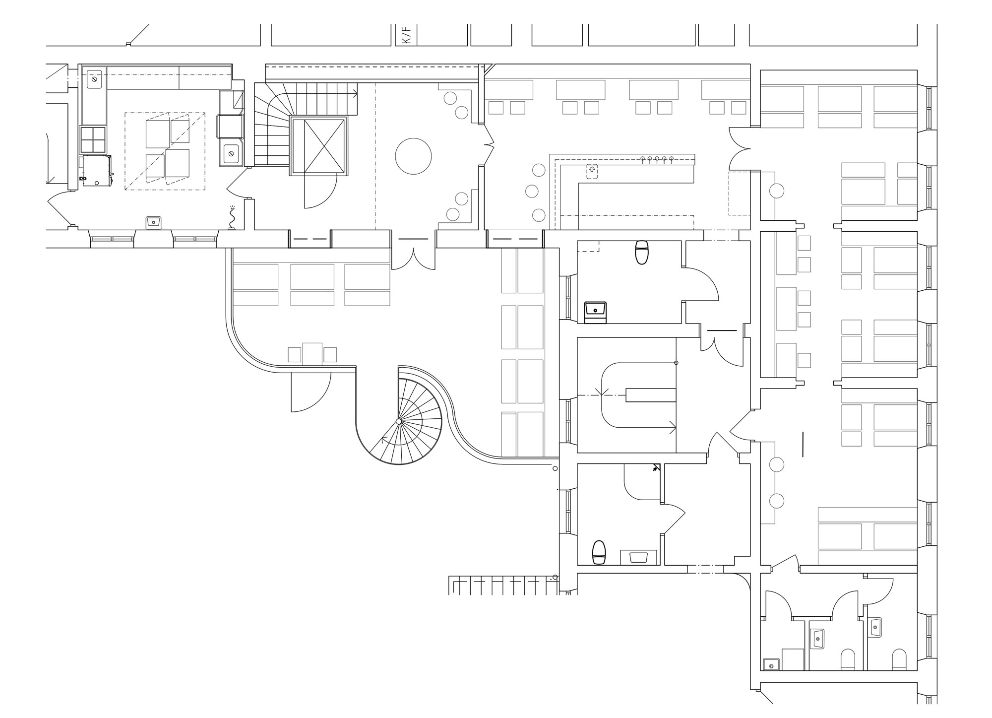
HG46 Restaurant Victoriagården

Gothenburg, Sweden 2020 — 2021


Brisket & Friends is an award winning restaurant serving Texas style BBQ and locally crafted beer. This is their 3rd restaurant located on Victoriagården in Gothenburg. It consists of a courtyard pavilion, an upper restaurant and a roof terrace. The atmosphere is relaxed and informal featuring a rustic material palette of textured wood and a saloon style interior. Additionally a dark colour scheme gives each room an individualised character and backdrop to different mood settings.