Architecture & Spatial Design

work     info

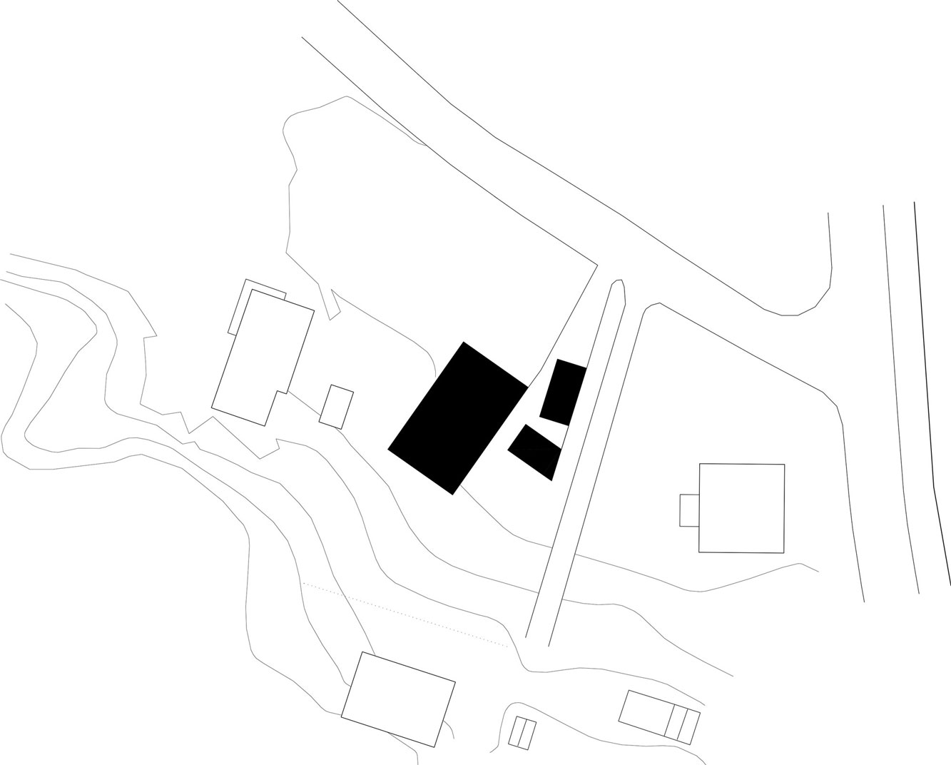
HG24 House Björken

Stockholm, Sweden 2017 — 2018


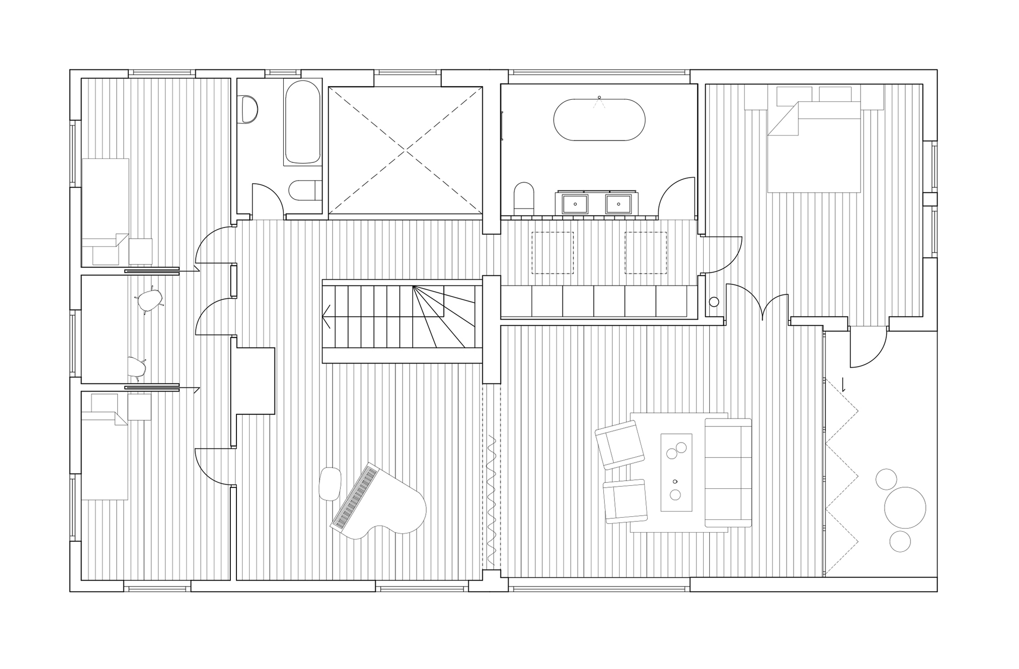
House Björken is a complete refurbishment of a private house at Lidingö, in Stockholm. Three main features form the new interior spaces. A vertical cut through the entrance hall, makes a double height space, connecting the two floors. An east/ west axis is created through the kitchen, allowing flexible and seamless use of indoor and outdoor space over time. Previous cellular room structure on the ground floor is trans- formed into open spaces visually and physically open to each other.

Photo Mikael Olsson.