Architecture & Spatial Design

work     info

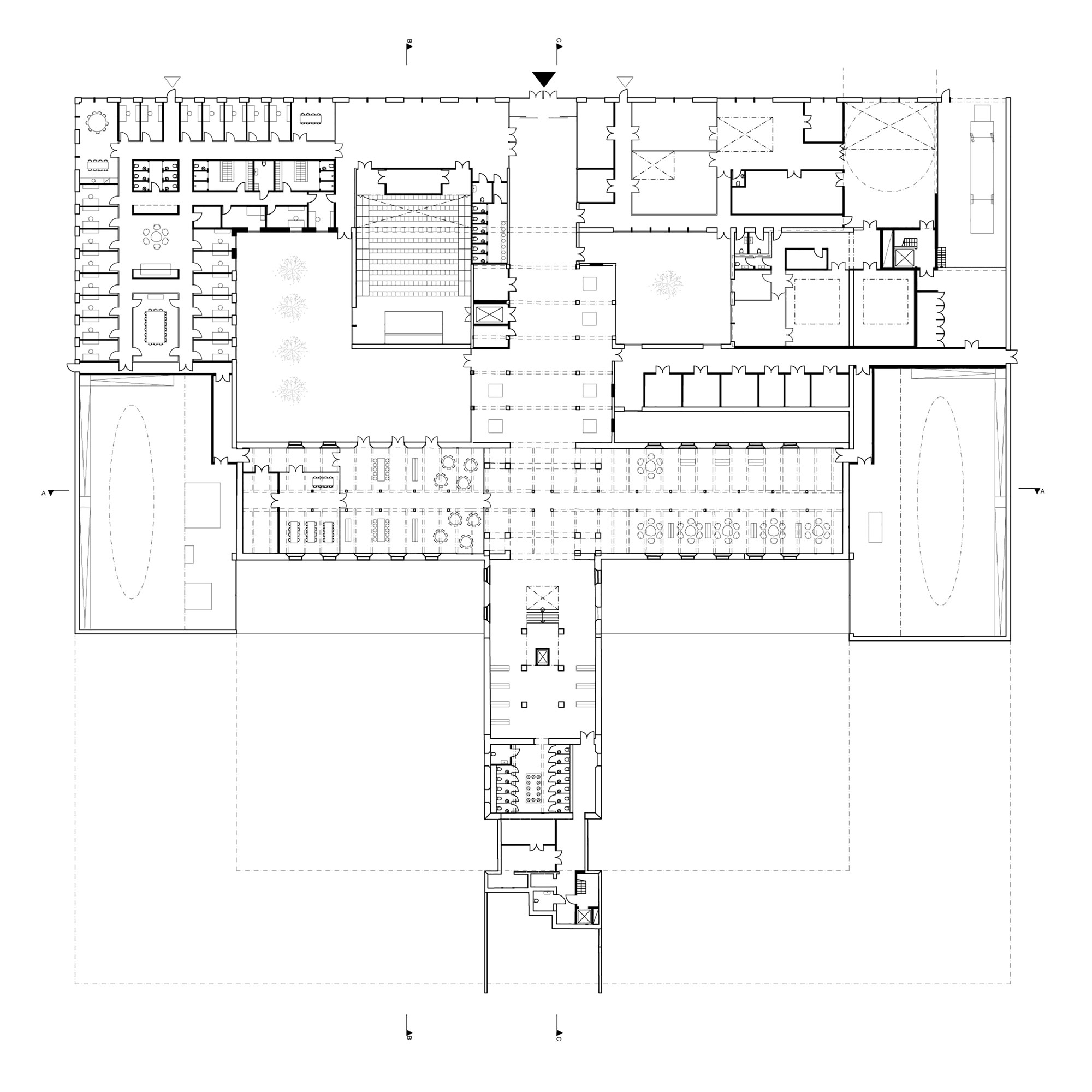
HG22 Museum of Viking Age

Osla, Norway 2015


The project is an addition to Arnstein Arneberg’s iconic building. It creates a new perimeter to the existing Viking Ship House and completes the courtyards that the existing building initiates. The new perimeter becomes a gallery. The courtyards and the existing axial plan contribute to an easily oriented layout and a natural way to explore.