Architecture & Spatial Design

work     info

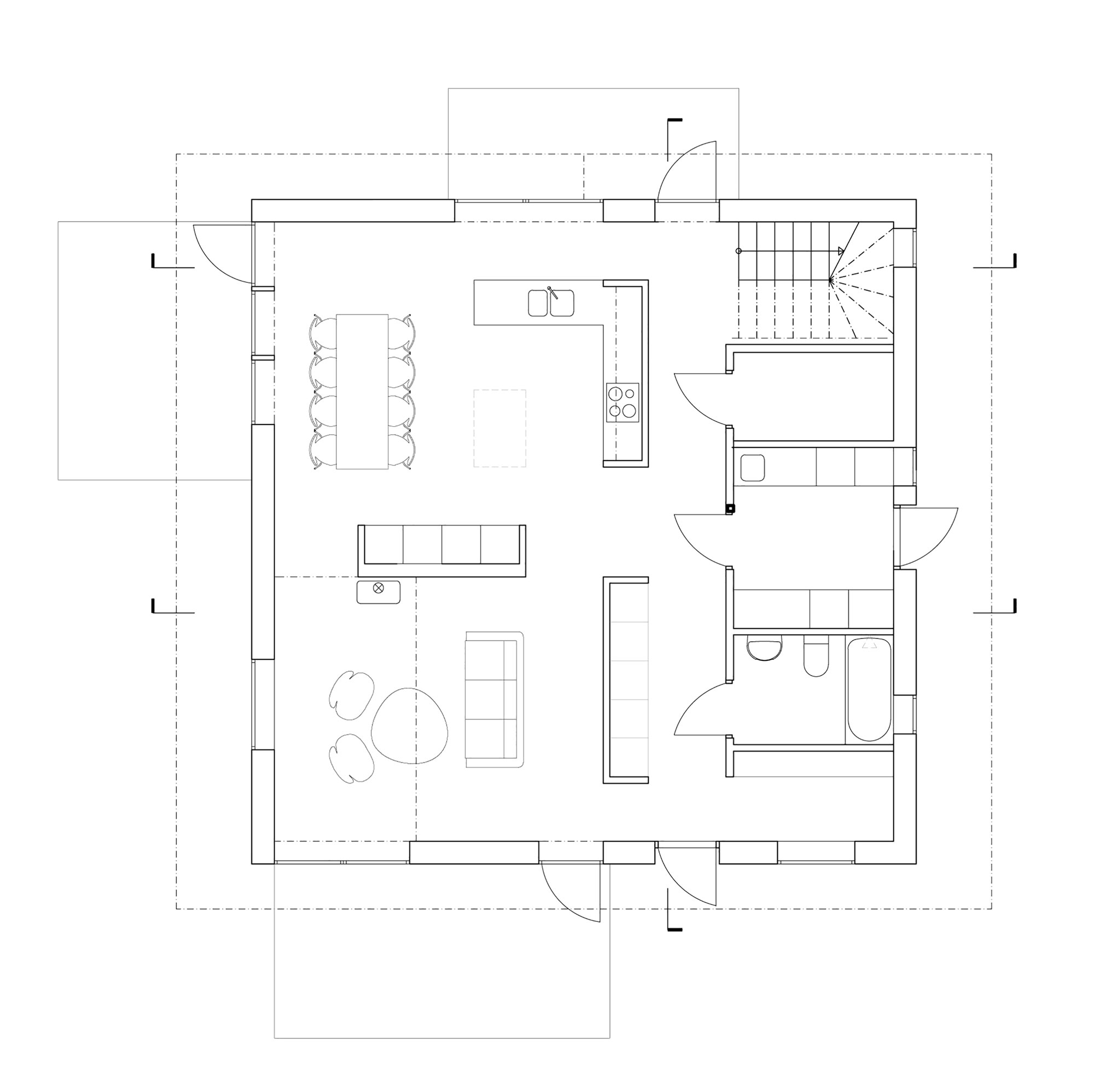
HG21 House 669
Skövde, Sweden 2015 — 2017


House 669 is a moderate budget house produced within a set fabrication process. The volume is archetypical, like a quick drawing of a house. 1 1/2 levels and open to the ridge, it provides a variety of spaces.  Three coloured "islands" divide the ground floor which becomes the scene for social life, while structurally supporting the private rooms upstairs.



Photo Mikael Olsson.