HG06 Housing Aspudden
Stockholm, Sweden 2016
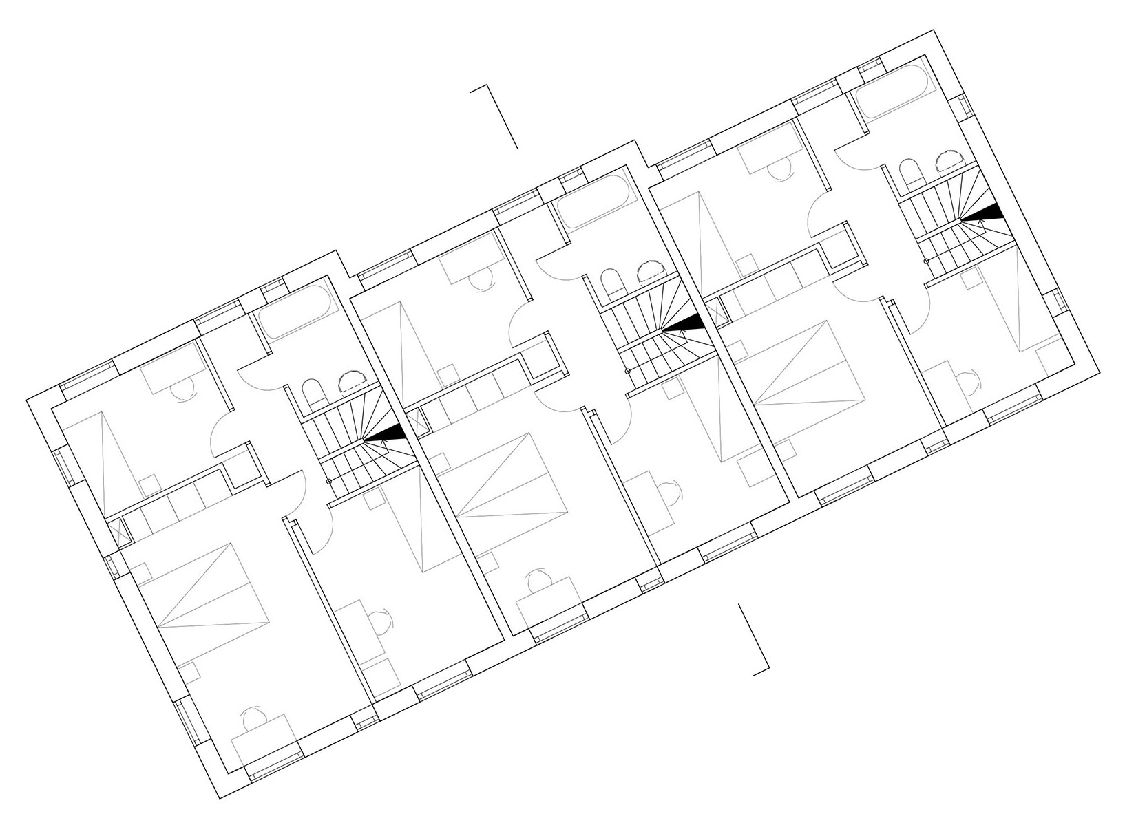
The Aspudden houses are oriented in the longitudinal direction of the plot, creating an archetypical gable towards the street. While the housing units share a common coherent socket/plinth, a significant cut
through the attic floor creates a private terrace and sight lines ”through” the building volume from nearby neighbours.









